Лестничная площадка назначение
Сборные жб лестничные марши
2лп25.15-4- лестничные площадки
2лп25.15-4- лестничные площадки
Лестничные площадки 2 ЛП 25.12-4-К
1лм 30.11.15-4
ЛМП 57.11.17-5
Стандартная ширина монолитной лестницы
Лестничный марш 1лм 30.12.15-
Лестничная площадка
2лмф 39.14.17-5 ширина ступени
Лестничный марш ЛМП 57.11.15-5
Красивый подъезд
Лестничная площадка
Сборка сборных жб ступеней
Flat лестничный пролет
Элементы деревянной лестницы названия
Узел примыкания жб лестницы
Современные подъезды
Название элементов маршевой лестницы
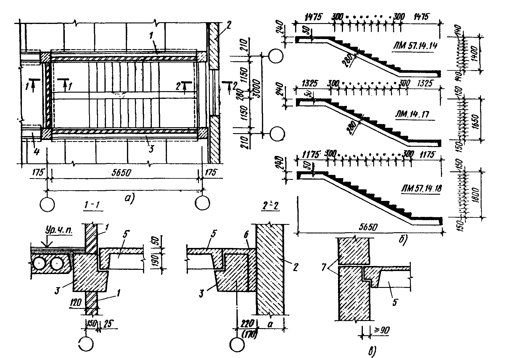
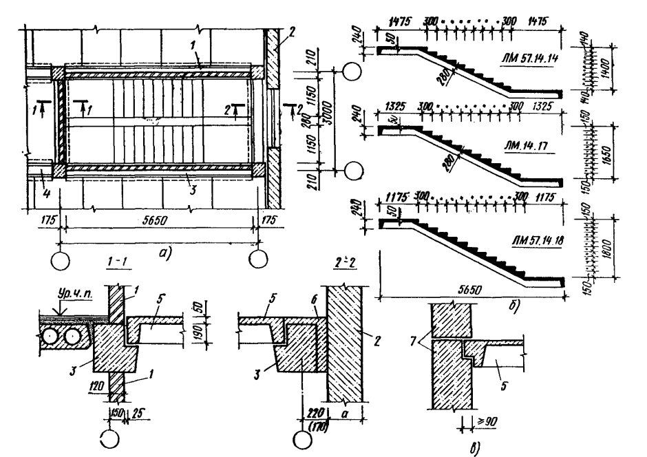
Конструкции лестниц из крупноразмерных железобетонных элементов.
Красивый подъезд
Подъезд внутри с лестницей
Сборная жб лестница чертеж
Лестничная площадка в подъезде
Шамбурная лестничная клетка
Школьный коридор с лестницей картинка
Лестница в подъезде
Подъездные лестницы
Ступеньки в подъезде

Лестничная клетка
Видеонаблюдение на лестничной площадке
Подъезд в сером цвете
Высота ступени лестницы стандарт
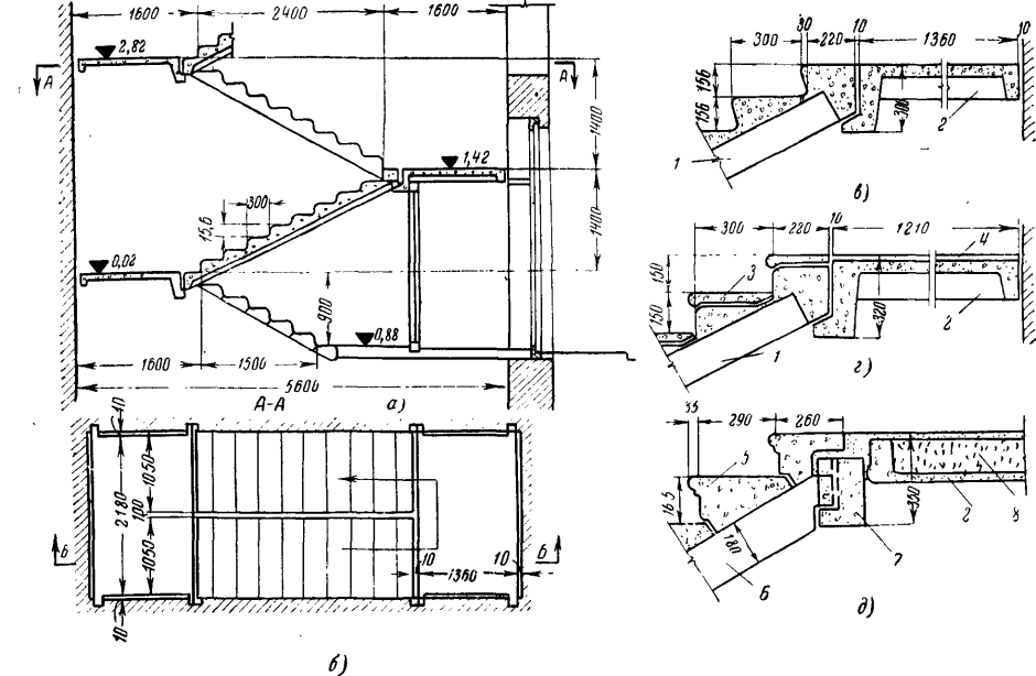
Монолитный лестничный марш с 2 полуплощадками
Красивые подъезды в домах
Двери на лестничную клетку
Фотолюминесцентная система эвакуации
Схема монтажа конструкций лестничной клетки

Краска для подъезда
Крепление ограждения сбоку марша
Как посчитать площадь лестницы
Лестница в подъезде
Девушка в подъезде
Лестница из пеноблоков Ytong
Отделка подъездов многоквартирных домов
Узел опирания лестничной площадки на стену
Лестница на металлическом каркасе
Лестничная клетка в подъезде
Узлы металлических косоуров 1.450.1
Старый подъезд
Покраска лестничного марша
ЛП-24 лестничная площадка
Зеленые стены в подъезде
Лестница в подъезде
Лестничные марши деревянные в частном доме
Кровати в коридоре больницы
Хлам на лестничной площадке
Лестничный марш снизу
Ширина лестничного марша
Деревянная лестница на косоурах чертеж
Подъезд внутри
Лестница проступь и подступенок
Стильный подъезд
Лестничный пролет в частном доме
Лестница в подъезде
Комментируют Лестничная площадка назначение: